Doppelhaushälfte in der Kleinsiedlung Dresden - Rochwitz zu verkaufen

Objektnummer
331830

Objektdaten

Anzahl Zimmer
4
Anzahl Schlafzimmer
1
Anzahl Badezimmer
1
Wohnfläche
77 m²
Grundstücksfläche
770 m²
Garage
Ja
Keller
Ja
Etagen
2

Preisangaben

Kaufpreis
349.000,00 EUR
Außencourtage
3,57% inkl. MwSt

Energieangaben

  • Energie­ausweis­typ
    Bedarf
  • Energieträger
    Erdgas leicht
  • Gültig bis
    25.11.2035
  • Baujahr
    1936
  • Energiekennwert
    258.21 kWh/(m²*a)
  • Energieeffizienzklasse
    H
    • A+
    • A
    • B
    • C
    • D
    • E
    • F
    • G
    • H
    0 25 50 75 100 125 150 175 200 225 >250
    Objekt anfragen

    Objektbeschreibung

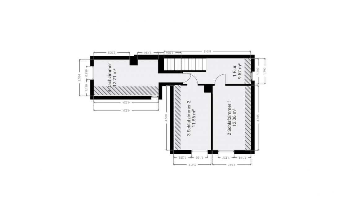
    Dieses Doppelhaus aus ca. dem Jahr 1936, erweitert durch einen kleinen Anbau um 1950, befindet sich in ruhiger und gewachsener Wohnlage von Dresden-Rochwitz. Das Haus wurde in solider Massivbauweise errichtet und bietet mit seiner klassischen Struktur sowie dem großzügigen Grundstück eine ideale Grundlage für individuelles Wohnen. Die Wohnfläche von ca. 77,46 m² verteilt sich auf 3,5 Zimmer im Erdgeschoss und dem ausgebauten Dachgeschoss. Ergänzt wird das Raumangebot durch ein weiteres kleines Zimmer mit ca. 4,76 m², das sich flexibel als Arbeits-, Gäste- oder Hobbyraum nutzen lässt. Das ca. 770 m² große Grundstück eröffnet vielfältige Nutzungsmöglichkeiten und lädt zu erholsamen Stunden im Grünen ein. Der vorhandene Garten bietet ausreichend Platz für individuelle Gestaltungsideen – ob zur Erholung, für Freizeitaktivitäten oder zur gärtnerischen Nutzung. Das Haus ist teilweise unterkellert und verfügt über einen Keller mit ca. 18 m², aufgeteilt in zwei Räume, die zusätzlichen Stauraum bieten. Eine massive Garage ergänzt das Angebot und sorgt für komfortables Parken. In der Nachbarschaft wurden bei einigen Häusern bereits Neubauanbauten realisiert, wodurch zusätzliche Wohnflächen geschaffen wurden. Dies eröffnet auch für dieses Objekt interessante Perspektiven zur Erweiterung und individuellen Weiterentwicklung.

    Ausstattung

    Im Laufe der Jahre wurden bereits verschiedene Modernisierungsmaßnahmen durchgeführt. - neuer Fassadenanstrich wurde 2017 durchgeführt - Gasheizung wurde 1992 umfassend erneuert - Fenster sind überwiegend doppelt verglast und stammen größtenteils aus dem Jahr 1990 - das Dach wurde 2002 erneuert und im Zuge dessen auch die Wärmedämmung verbessert - Garagendach 2020 neu belegt und 2003 ein elektrisches Garagentor eingebaut - Hof und Einfahrt 1999 Neu verlegt

    Lage

    Die Immobilie befindet sich in ruhiger und grüner Wohnlage im Dresdner Stadtteil Rochwitz. Das Umfeld ist geprägt von einer gewachsenen Kleinsiedlung mit Ein- und Zweifamilienhäusern sowie gepflegten Gärten und bietet eine angenehme, naturnahe Wohnatmosphäre. Trotz der ruhigen Lage ist die Verkehrsanbindung sehr gut. Über die nahegelegenen Straßenverbindungen gelangen Sie in kurzer Zeit in die Dresdner Innenstadt sowie in die angrenzenden Stadtteile Bühlau, Weißig und Loschwitz. Der öffentliche Nahverkehr ist ebenfalls gut erreichbar und ermöglicht eine bequeme Anbindung an das Stadtzentrum und weitere Teile Dresdens. Einkaufsmöglichkeiten für den täglichen Bedarf befinden sich in den umliegenden Stadtteilen und sind in wenigen Fahrminuten erreichbar. Darüber hinaus stehen Ihnen verschiedene Dienstleister, Bäcker, Ärzte, Grundschule und Kindertagesstätten in der näheren Umgebung zur Verfügung, was den Standort auch für Familien attraktiv macht. Die Nähe zur Natur ist ein weiterer Pluspunkt: Die Umgebung bietet zahlreiche Möglichkeiten für Spaziergänge, Radtouren und Erholung im Grünen. Gleichzeitig profitieren Sie von der guten Erreichbarkeit der Dresdner Elbhänge und weiterer beliebter Ausflugsziele.

    Sonstiges

    HINWEIS: Eine Bearbeitung Ihrer Anfrage kann nur erfolgen, wenn Sie uns mindestens folgende Kontaktdaten übermitteln: - Name - Vorname - Anschrift - Telefonnummer und / oder E-Mail-Adresse. Eine Datenschutz konforme Behandlung Ihrer Kundendaten ist dabei selbstverständlich. Wir bedanken uns für Ihr Verständnis. Dieses Angebot ist freibleibend. Irrtum und Zwischenverkauf ist vorbehalten. Für die Richtigkeit der Angaben wird keine Gewähr übernommen. Alle Angaben im Exposé wurden uns vom Eigentümer übermittelt und konnten nicht von uns überprüft werden. Das Exposé dient der Vorinformation, als Rechtsgrundlage gilt ausschließlich der von beiden Parteien abgeschlossene Kaufvertrag!

    Ansprechpartner

    A. Wenzel
    Telefon: 0351-314 87 39
    E-Mail: info@freie-immo.com
    Stempel/Siegel freie-immo

    Das Angebot ist freibleibend. Alle Informationen beruhen auf Angaben des Eigentümers, für deren Richtigkeit wir leider keine Gewähr übernehmen können. Irrtum und Zwischenverkauf bleiben vorbehalten.

    Ihre Anfrage

    Was ist die Summe aus 4 und 2?
    Wir verarbeiten Ihre, in diesem Formular eingegebenen, personenbezogenen Daten ausschließlich für die Beantwortung bzw. Verarbeitung Ihrer Anfrage. Wie wir weitere personenbezogene Daten verarbeiten entnehmen Sie bitte unserer Datenschutzerklärung.