Charmantes Mehrfamilienhaus bei Schloss Wackerbarth – attraktiv für Anleger & Eigennutzer
Objektnummer
331809
Objektdaten
Anzahl Zimmer
11
Wohnfläche
305 m²
Grundstücksfläche
672 m²
Keller
Ja
denkmalgeschützt
Ja
Preisangaben
Kaufpreis
589.000,00 EUR
Außencourtage
7,14% inkl. MwSt.
Energieangaben
Energieausweistyp
Nicht notwendig
Baujahr
1896
Objektbeschreibung
Dieses charmante Mehrfamilienhaus in Radebeul vereint historische Substanz mit modernem Wohnkomfort. Eingebettet zwischen Elbe und den berühmten Radebeuler Weinbergen bietet die Lage, mit der Nähe zu Schloss Wackerbarth, ein unverwechselbares Flair mit hoher Lebensqualität. Das Haus wurde 2005 umfassend und denkmalgerecht saniert. Dabei blieb der historische Charakter erhalten, während moderne Wohnstandards Einzug hielten. Auf einer Gesamtwohnfläche von ca. 305 m² verteilen sich vier stilvolle Wohnungen, die ein attraktives Wohn- und Anlageobjekt ergeben. Ein besonderes Highlight ist die derzeit freie 4-Zimmer-Wohnung im Obergeschoss: Großzügig geschnitten, ausgestattet mit zwei Balkonen und einem gemütlichen Kaminofen, eignet sie sich ideal für Eigennutzer, die ihren Traum vom Wohnen in Radebeul verwirklichen möchten. Dank der bestehenden Mieteinnahmen, aus den drei vermieteten Einheiten, lässt sich die Finanzierung hervorragend unterstützen. Für Anleger bietet sich wiederum die Möglichkeit, die freie Wohnung schnell neu zu vermieten um so die Rendite voll auszuschöpfen. Mit seiner gelungenen Mischung aus Wohn- und Anlageobjekt stellt dieses Mehrfamilienhaus in einer begehrten Lage von Radebeul, eine seltene Gelegenheit dar – ideal für Investoren, Eigennutzer oder eine Kombination aus beidem.Ausstattung
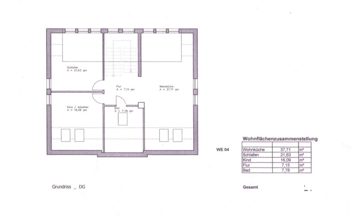
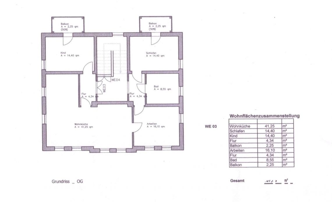
Erdgeschoss: - 2 mal 2 Raum-Wohnung mit Balkon und ca. 52 m² pro Wohnung - aktuell sind beide Wohnungen miteinander verbunden und sind als Büro vermietet mit Jahres-Netto-Kaltmiete von 7.680 EUR Obergeschoss: - 4 Raum-Wohnung mit ca. 107 m² - 2 Balkone - Dielenboden - Kaminofen - Bad mit Wanne, Dusche und Fenster - aktuell steht die Wohnung leer - geeignet für Eigennutz - oder Neuvermietung mit ca. 13.200 EUR Jahres-Netto-Kaltmiete Dachgeschoss: - 3 Raum-Wohnung mit ca. 93 m² - Kamin - Dielenboden - Bad mit Wanne, Dusche und Fenster - vermietet mit Jahres-Netto-Kaltmiete von 8.388 EUR Mieten: - IST Miete: 16.068 EUR - SOLL Miete bei Vollvermietung: ca. 29.268 EUR Sanierung: 2005 Heizung: Gas-Therme Energieausweis: kein Energieausweis (Denkmal)Lage
Das Mehrfamilienhaus befindet sich in gefragter Lage von Radebeul-West, direkt an der traditionsreichen "Sächsischen Weinstraße", nur wenige Schritte vom bekannten Schloss Wackerbarth entfernt. Diese Lage verbindet den Charme der sächsischen Weinkulturlandschaft mit der Nähe zur Landeshauptstadt Dresden. Die Umgebung ist geprägt von historischen Weingütern, gepflegten Villen, der Nähe zur Elbe und den weitläufigen Weinbergen, die Radebeul seinen einzigartigen Charakter verleihen. Gleichzeitig profitieren die Bewohner von einer hervorragenden Infrastruktur: Geschäfte des täglichen Bedarfs, Restaurants, Ärzte sowie Schulen und Kindergärten sind in unmittelbarer Nähe vorhanden. Mit dem Auto erreichen Sie in wenigen Fahrminuten die Stadt Dresden und Meißen sowie den Flughafen Dresden und die Autobahn A4. Auch die Anbindung an den öffentlichen Nahverkehr ist sehr gut – mit Straßenbahn und S-Bahn gelangen Sie bequem in das Dresdner Stadtzentrum. Die Lage vereint damit wohnen in einer traditionsreichen, kulturell geprägten Umgebung mit den Vorteilen einer modernen, schnellen Anbindung – ein attraktiver Standort für Eigennutzer wie auch Kapitalanleger.Sonstiges
HINWEIS: Eine Bearbeitung Ihrer Anfrage kann nur erfolgen, wenn Sie uns mindestens folgende Kontaktdaten übermitteln: - Name - Vorname - Anschrift - Telefonnummer und / oder E-Mail-Adresse. Eine Datenschutz konforme Behandlung Ihrer Kundendaten ist dabei selbstverständlich. Wir bedanken uns für Ihr Verständnis. Dieses Angebot ist freibleibend. Irrtum und Zwischenverkauf sind vorbehalten. Für die Richtigkeit der Angaben wird keine Gewähr übernommen. Die Angaben im Exposé wurden uns vom Eigentümer übermittelt und nach bestem Wissen zusammengestellt. Das Exposé dient der Vorinformation mit dem Stand zum Zeitpunkt der Anzeigen-Erstellung. Als Rechtsgrundlage gilt ausschließlich der von beiden Parteien abgeschlossene Kaufvertrag!Ansprechpartner
A. WenzelTelefon: 0351-314 87 39
E-Mail: info@freie-immo.com

Das Angebot ist freibleibend. Alle Informationen beruhen auf Angaben des Eigentümers, für deren Richtigkeit wir leider keine Gewähr übernehmen können. Irrtum und Zwischenverkauf bleiben vorbehalten.