sonnige 3 Zimmer-Wohnung - in Dresden Trachenberge

Objektnummer
331668_011

Objektdaten

Anzahl Zimmer
3
Anzahl Badezimmer
1
Wohnfläche
93 m²
Keller
Ja
Etagen
4

Preisangaben

Kaltmiete
690,00 EUR
Kaufpreis
229.500,00 EUR
Außencourtage
3,57% inkl. 19% MwSt.

Energieangaben

  • Energie­ausweis­typ
    Verbrauch
  • Energieträger
    Erdgas schwer
  • Gültig bis
    11.09.2028
  • Baujahr
    1930
  • Energiekennwert
    131 kWh/(m²*a)
  • Energieeffizienzklasse
    E
    • A+
    • A
    • B
    • C
    • D
    • E
    • F
    • G
    • H
    0 25 50 75 100 125 150 175 200 225 >250
    Objekt anfragen

    Objektbeschreibung

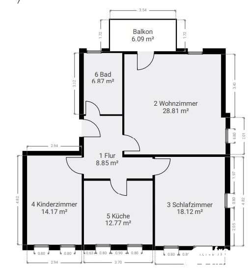
    Nur wenige Gehminuten vom Hubertusplatz im Dresdner Norden entfernt befindet sich diese attraktiv geschnittene 3-Zimmer-Wohnung im 3. Obergeschoss eines gepflegten Mehrfamilienhauses. Das Wohnhaus wurde um 1930 erbaut, 1996 umfassend saniert und fügt sich harmonisch in ein Quartier mit zahlreichen denkmalgeschützten Gebäuden ein. Die Lage zählt zu den grünen, ruhigen Wohngegenden Dresdens und ist damit äußerst interessant. Die Wohnung verfügt über eine Gesamtwohnfläche von ca. 93 m², die sich auf 3 Zimmer, ein Badezimmer und einem Balkon verteilen. Der großzügige Wohnbereich bietet ausreichend Platz für eine gemütliche Einrichtung und ist durch die Fenster lichtdurchflutet. Der Bodenbelag besteht aus Fliesen und modernem Vinylboden, der für eine angenehme Wohnatmosphäre sorgt. Die Wohnung ist vermietet und erzielt eine monatliche Nettokaltmiete von 670 €. Zur Wohnung gehört ein Außenstellplatz, der für 20 € pro Monat angemietet ist, sowie ein Kellerabteil. Die Beheizung der Wohnung erfolgt über eine Zentralheizung, die mit Erdgas betrieben wird. Energieausweis: nach Verbrauch, 131 kWh/(m²•a) gültig bis 11.09.2028, Energieeffizienzklasse E, Energieträger Erdgas schwer, Baujahr: 1930 Dank der beliebten Wohnlage, der guten Aufteilung sowie der gepflegten Gesamtstruktur der Wohnanlage bietet sich die Immobilie hervorragend als solide Kapitalanlage an. Überzeugen Sie sich selbst und vereinbaren Sie mit uns einen Besichtigungstermin!

    Ausstattung

    Die Wohnung verfügt über ca. 93 m² Wohnfläche, verteilt auf 3 gut geschnittene Zimmer, ein Tageslichtbad, eine geräumige Küche und einen Balkon mit Weitblick. Der großzügige Wohnbereich mit ca. 29 m² bildet das Herzstück der Wohnung: lichtdurchflutet, freundlich und mit direktem Zugang zum nach Osten ausgerichteten Balkon. Von hier eröffnet sich ein schöner Blick über eine Gartenanlage bis hin zu den Trachenberger Weinbergen – ein idealer Ort, um den Morgen entspannt zu beginnen. Das Bad ist deckenhoch gefliest, verfügt über Fenster, Wanne, separate Dusche sowie einen Waschmaschinenanschluss. Die Küche, die ausreichend Platz für eine Wohnküche bietet, und die beiden Schlafzimmer sind nach Westen ausgerichtet. In der Küche und im Flur wurden Fliesen verlegt, während die Wohnräume mit modernem Vinylboden ausgestattet sind. Zur Wohnung gehört ein Kellerabteil und ein Außenstellplatz auf dem Hof. In den letzten Jahren wurde das Treppenhaus (2020) renoviert und das Dach neu gedeckt (2023).

    Lage

    Bereits in der Mitte des 19. Jahrhunderts wurden die Flurstücken im nordwestlichen Dresdner Elbtalhang gelegene Gebiet Trachenberge auf Grund der wachsenden Bevölkerung für viele Bauherren ein begehrten Standort. Die rasterförmig angelegten Straßen ließen Raum für offene und geschlossene Wohnbebauung. Die Umgebung bietet eine ausgewogene Mischung aus urbanem Komfort und naturnahem Wohngefühl. Große, alte Baumbestände schaffen ein angenehm grünes Ambiente und unterstreichen den hohen Wohnwert der Lage. Einkaufsmöglichkeiten, ÖPNV, Schulen sowie Freizeit- und Erholungsbereiche sind gut erreichbar – ein klarer Vorteil für Vermietungsperspektive und für eventuell einer späteren Eigennutzung.

    Sonstiges

    HINWEIS: Eine Bearbeitung Ihrer Anfrage kann nur erfolgen, wenn Sie uns mindestens folgende Kontaktdaten übermitteln: - Name - Vorname - Anschrift - Telefonnummer und / oder E-Mail-Adresse. Eine Datenschutz konforme Behandlung Ihrer Kundendaten ist dabei selbstverständlich. Wir bedanken uns für Ihr Verständnis. Dieses Angebot ist freibleibend. Irrtum und Zwischenverkauf ist vorbehalten. Für die Richtigkeit der Angaben wird keine Gewähr übernommen. Alle Angaben im Exposé wurden uns vom Eigentümer übermittelt und konnten nicht von uns überprüft werden. Das Exposé dient der Vorinformation, als Rechtsgrundlage gilt ausschließlich der von beiden Parteien abgeschlossene Kaufvertrag!

    Ansprechpartner

    A. Wenzel
    Telefon: 0351-314 87 39
    E-Mail: info@freie-immo.com
    Stempel/Siegel freie-immo

    Das Angebot ist freibleibend. Alle Informationen beruhen auf Angaben des Eigentümers, für deren Richtigkeit wir leider keine Gewähr übernehmen können. Irrtum und Zwischenverkauf bleiben vorbehalten.

    Ihre Anfrage

    Was ist die Summe aus 2 und 4?
    Wir verarbeiten Ihre, in diesem Formular eingegebenen, personenbezogenen Daten ausschließlich für die Beantwortung bzw. Verarbeitung Ihrer Anfrage. Wie wir weitere personenbezogene Daten verarbeiten entnehmen Sie bitte unserer Datenschutzerklärung.